แบบขออนุญาตก่อสร้างร้านกาแฟ

แบบขออนุญาตก่อสร้างร้านกาแฟ


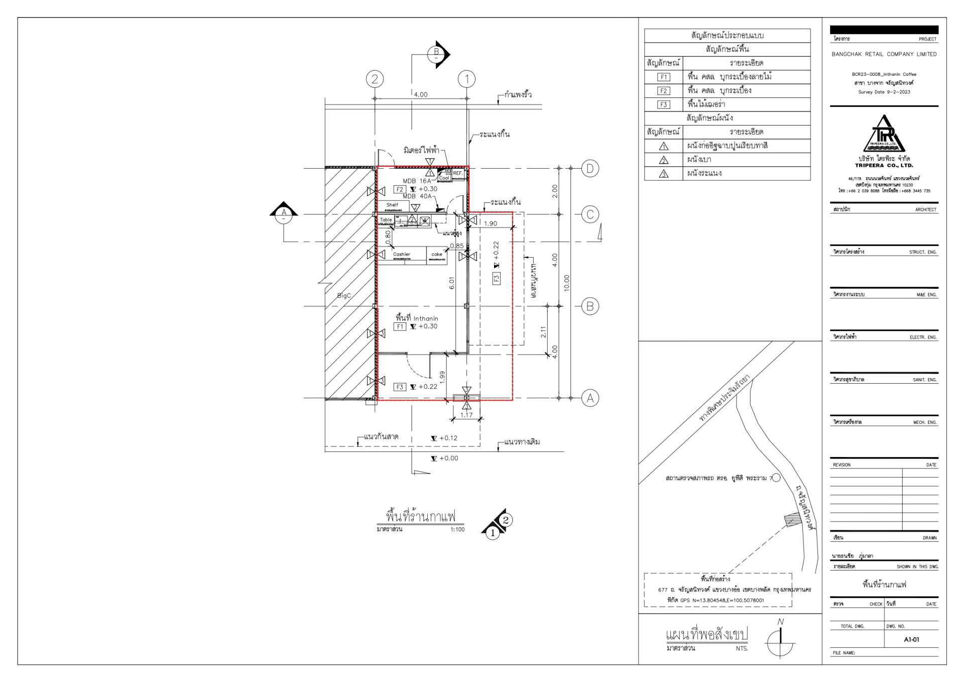
บริการ สำรวจ เขียนแบบขออนุญาตก่อสร้างร้านกาแฟ โดยมีกระบวนการจัดทำเอกสารและแบบแปลนที่จำเป็นต้องใช้เพื่อขออนุญาตจากหน่วยงานที่มีอำนาจ แสดงรายละเอียดของการออกแบบร้านกาแฟ เช่น ขนาด, รูปแบบ, การแบ่งพื้นที่ใช้ประโยชน์, ตำแหน่งของบาร์กาแฟ, โต๊ะรับรองลูกค้า รวมถึงระบบไฟฟ้า, ประปา, ระบบระบายอากาศ, และความปลอดภัย เพื่อให้ได้ซึ่งเอกสารที่ครบถ้วน ถูกต้อง สมบูรณ์ พร้อมส่งมอบให้ลูกค้าในเวลาอันรวดเร็ว